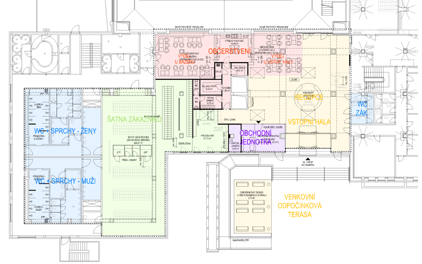
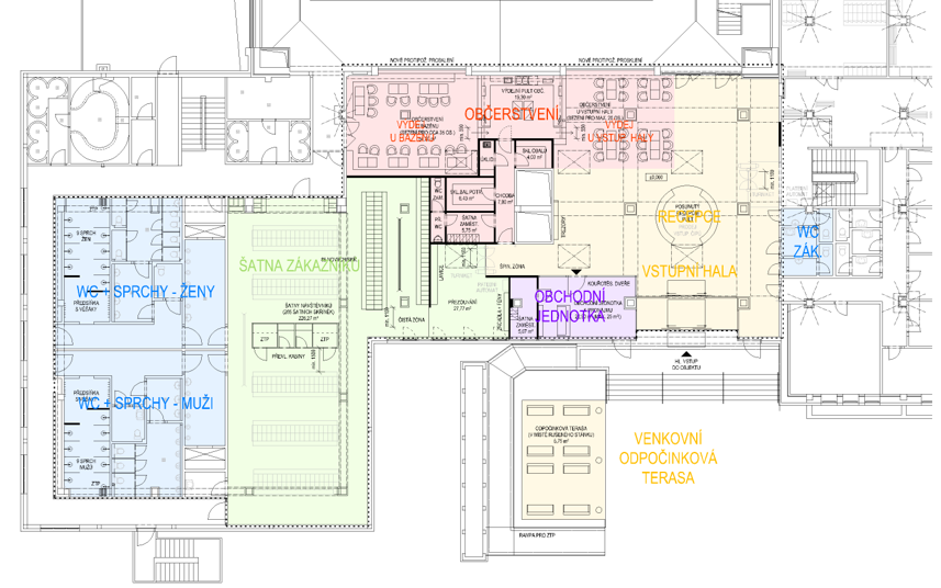
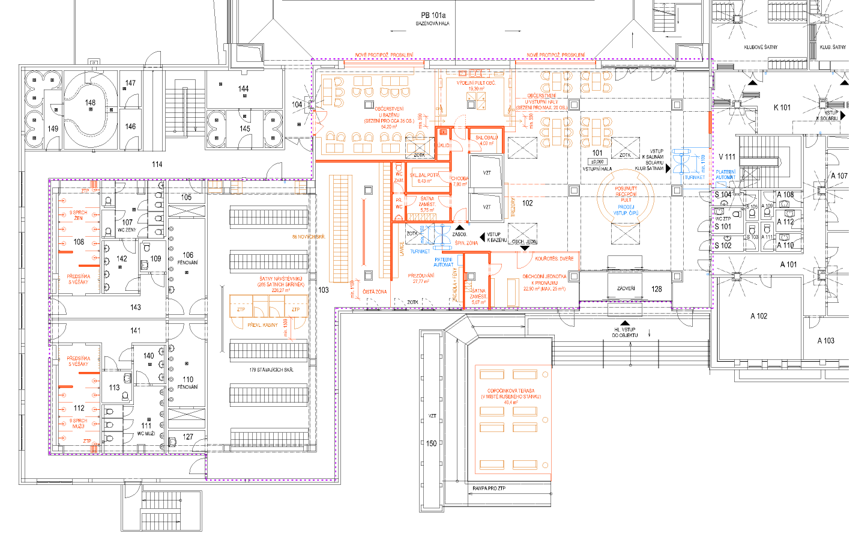
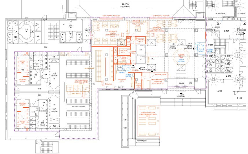
Plavecký areál Klíše se dočká občerstvení
Město se dlouhodobě podílí na úpravách a modernizaci v plaveckém areálu na Klíši. Nyní přispěje na další změny, které povedou k vyššímu komfortu návštěvníků.
Upraví se dispozice šaten, které jsou v současné době předimenzované, a ve vzniklém prostoru se zrealizuje vnitřní občerstvení s výdejem do vstupní haly a k bazénu (tzv. mokrý bar). U vstupní haly bude kapacita občerstvení pro nejvýše 20 osob a u bazénu pro maximálně 35 osob.
„Víme, že rodiče často čekají na své děti, které sem chodí na tréninky, a chybí jim tu místo, kde si mohou v klidu sednout a dát si třeba kávu. Občerstvení proto vracíme zpět k hlavnímu vstupu, kde už dříve bývalo a kde dnes návštěvníkům citelně chybí. Při rekonstrukci vnitřní části plavecké haly, která byla dokončena v roce 2014 podle projektu z roku 2012, se totiž počítalo s občerstvením jinde a dnes tam funguje fitness. Praxe ale ukázala, že pro návštěvníky je mnohem přirozenější a pohodlnější mít občerstvení hned u vstupu,“ uvedla náměstkyně primátora Věra Nechybová.
Město na tuto investiční akci poskytne 10 milionů korun ze svého rozpočtu, celkové předpokládané výdaje jsou 11,5 milionu korun bez DPH. Práce by měly být hotové do 140 dnů od zahájení.
Tento projekt navazuje na realizaci Wellness a fitness, která proběhla v loňském roce. Bylo přemístěno fitness centrum ze suterénu do bývalého občerstvení plavecké haly. Na to se navázalo využitím uvolněných prostor v suterénu plavecké haly po bývalém fitness. Vznikl zde nový rozsáhlý Saunový Svět s bohatou nabídkou služeb. Návštěvníci tu mají k dispozici občerstvení, ochlazovací bazének, sprchy, parní kabiny, finské, tropické a bio sauny, sauny pro saunové ceremoniály a dále venkovní i vnitřní odpočívárnu. Nově vybudované wellness centrum rozšiřuje možnosti plavecké haly o moderní relaxační zónu a navazuje na dlouhodobou snahu vedení města vytvářet kvalitní podmínky pro sport a odpočinek. Celková cena wellness centra včetně venkovní odpočívárny byla 16 milionů korun bez DPH.

